New build: Corner house with southwest-facing garden
Experience a unique living concept on picturesque Lake Starnberg, where your own home awaits you.
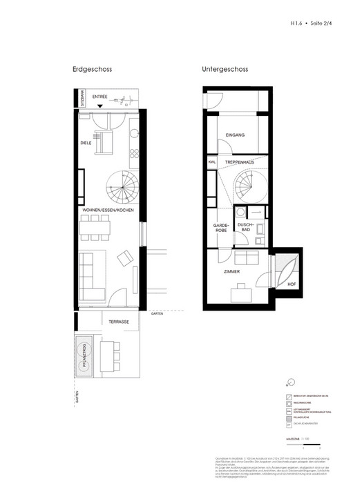
The modern corner house in the SEELEBEN new-build project is embedded in an open garden landscape and offers a perfect balance of spaciousness and privacy with approx. 146 m² of living space and an 84 m² south-west-facing garden. The open-plan living, dining and cooking area on the first floor with windows facing south-west and south-east creates an inviting and cozy atmosphere with its terrace access. A further room and a bathroom on the lower floor offer additional comfort, ideal for guests or as a study. There are two further bedrooms on the upper floor, each with a balcony. The top floor has a spacious master bedroom with en-suite bathroom and a loggia.
Direct access to the underground garage with two parking spaces adds to the convenience, while smart features such as a private wooden-electric motorboat with mooring in Leoni, a guest suite, a party kitchen, a gym, a spa area, a home cinema and a bicycle workshop complete the communal facilities. The exclusive location rounds off the offer and promises unique living quality.
Here you will find space for interaction and living together in the midst of a harmonious neighborhood that values stylish and modern living. Welcome to SEELEBEN, where individuality and communal living are in harmony.
The units will be ready for occupancy from June 2025.
- Property
- HS 1570.1.6
- Property type
- Terraced corner house
- Address
- Please contact us for further information
- Construction year
- 2025
- State
- First occupancy
- Land area
- 6.219 m²
- Living space
- approx. 145,78 m²
- Useful area
- approx. 186,4 m²
- Garden area
- approx. 84 m²
- Room
- 5
- Bedroom
- 4
- Bathroom
- 3
- Balconies
- 3
- Terraces
- 1
- Parking spaces
- 2
- Number of floors
- 4
- Equipment
- upscale
- Garden use
- yes
- With a cellar
- yes
- Purchase price
- 1.295.000 €
- Parking spaces (2)
- 58.000 €
- Total price
- 1.353.000 €
- Buyer's commission
- Commission free for the buyer
- Exceptional architecture with the highest standards of function and aesthetics
- Communal open spaces with fruit trees and meadows
- Large, elaborately designed playground
- Private garden with approx. 84 m²
- Terrace with raised bed, balconies on both sides on the upper floor
- Interior design: three furnishing lines "Nature", "Lake" and "Elegance" for individual selection
- High-quality oak floorboards from the Casa Park collection by Bauwerk Parkett
- Design bathrooms in three different equipment lines
- Porcelain stoneware tiles from Casalgrande Padana in bathrooms
- High-quality VOLA fittings and sanitary ceramics from Laufen
- Electric towel radiator from Kermi in the bathroom
- Entrance door made of larch wood with multi-point locking and electric door opener
- Audio intercom system
- Wooden windows with triple-pane insulating glazing
- Sun protection with electrically operated vertical awnings
- Round window elements with solar control glazing
- Comfort ventilation unit with heat recovery
- Underfloor heating
- Air heat pump supplemented by gas condensing boiler system
- Photovoltaic system
- Two underground parking spaces and bicycle parking spaces with connection for e-mobility
- Direct access from the building's own cellar to the underground garage
- Dining room, guest suite, sauna incl. relaxation room, fitness room, cinema, bicycle workshop, retro electric boat at nearby jetty and golf cart
Lake Starnberg, the surrounding landscape and the picturesque communities are undoubtedly among the most beautiful and privileged places in Germany. Upper Bavarian tradition and down-to-earthness are combined here with an upscale lifestyle and cosmopolitan expansiveness. The municipality of Berg nestles idyllically on the sun-drenched eastern shore of the lake with its own landing stage. Thanks to its ideal connection to Munich and excellent infrastructure, Berg is widely regarded as the most desirable residential area on Lake Starnberg.
Berg is home to numerous restaurants and cafés, banks, a post office and all stores for daily needs. There is also a kindergarten, an elementary school, a Montessori school and a grammar school (Kempfenhausen). In addition, there is a wide range of excellent schools (including the renowned Munich International School (MIS)), first-class doctors, excellent restaurants and high-quality shopping facilities in neighboring Starnberg.
Both Starnberg and Leonie (2 km south of Berg) have very well-equipped marinas (Rambeck, Simmerding, Gastl) where you can rent moorings for sailing, electric and motor boats in summer. The numerous restaurants right on the water are easily and conveniently accessible by boat. There is a popular water ski school in Possenhofen opposite. Numerous first-class golf courses, tennis clubs and sailing clubs around Lake Starnberg also provide an unsurpassed range of leisure activities. The nearby A95 to Garmisch provides fantastic access to the picturesque hiking and skiing areas of the Bavarian, Austrian and Swiss Alps in both summer and winter.
- Energy certificate type
- Demand pass
- Valid until
- 30.04.2034
- Main energy source
- Luftwärmepumpe
- Final energy demand
- 47 kWh/(m²*a)
- Energy efficiency class
- A
|
Unit |
Area |
Rooms |
Parking spaces |
Floor plan |
Purchase price |
|---|---|---|---|---|---|
| ETW 3388.1 | approx. 145,78 m² | 5 | 2 | view | 1.490.000 € |
| ETW 3388.10 | approx. 143,74 m² | 5 | 2 | view | 1.290.000 € |
| ETW 3388.12 | approx. 143,99 m² | 5 | 2 | view | 1.350.000 € |
| ETW 3388.13 | approx. 128,11 m² | 4 | 2 | view | 1.230.000 € |
| ETW 3388.17 | approx. 128,39 m² | 4 | 2 | view | 1.199.000 € |
| ETW 3388.18 | approx. 163,50 m² | 6 | 2 | view | 1.525.000 € |
| ETW 3388.19 | approx. 145,66 m² | 5 | 2 | view | 1.380.000 € |
| ETW 3388.2 | approx. 145,86 m² | 4 | 2 | view | 1.430.000 € |
| ETW 3388.20 | approx. 145,66 m² | 5 | 2 | view | 1.340.000 € |
| ETW 3388.7 | approx. 143,99 m² | 5 | 2 | view | 1.350.000 € |
| HS 1570.1.1 | approx. 145,78 m² | 5 | 2 | view | 1.270.000 € |
| HS 1570.1.2 | approx. 140,42 m² | 4 | 2 | view | 1.225.000 € |
| HS 1570.1.3 | approx. 145,66 m² | 5 | 2 | view | 1.199.000 € |
| HS 1570.1.4 | approx. 145,66 m² | 5 | 2 | view | 1.230.000 € |
| HS 1570.1.5 | approx. 145,66 m² | 5 | 2 | view | 1.199.000 € |
| HS 1570.1.6 | approx. 145,78 m² | 5 | 2 | view | 1.295.000 € |
| HS 1570.2.1 | approx. 143,99 m² | 5 | 2 | view | 1.350.000 € |
| HS 1570.2.2 | approx. 143,74 m² | 5 | 2 | view | 1.295.000 € |
| HS 1570.2.3 | approx. 143,74 m² | 5 | 2 | view | 1.295.000 € |
| HS 1570.2.4 | approx. 143,74 m² | 5 | 2 | view | 1.290.000 € |
| HS 1570.2.5 | approx. 143,74 m² | 5 | 2 | view | 1.290.000 € |
| HS 1570.2.6 | approx. 143,99 m² | 5 | 2 | - | sold |
| HS 1570.3.1 | approx. 128,11 m² | 4 | 2 | view | 1.230.000 € |
| HS 1570.3.2 | approx. 128,39 m² | 4 | 2 | - | sold |
| HS 1570.3.3 | approx. 128,39 m² | 4 | 2 | view | 1.199.000 € |
| HS 1570.3.4 | approx. 128,39 m² | 4 | 2 | view | 1.199.000 € |
| HS 1570.3.5 | approx. 128,39 m² | 4 | 2 | view | 1.199.000 € |
| HS 1570.3.6 | approx. 163,50 m² | 6 | 2 | view | 1.525.000 € |
| HS 1570.4.2 | approx. 145,66 m² | 5 | 2 | view | 1.380.000 € |
| HS 1570.4.3 | approx. 145,66 m² | 5 | 2 | view | 1.340.000 € |
| HS 1570.4.4 | approx. 145,66 m² | 5 | 2 | view | 1.365.000 € |
| HS 1570.4.5 | approx. 145,66 m² | 5 | 2 | view | 1.340.000 € |
We will gladly send you our detailed exposé with a detailed description of the property including planning documents by e-mail and, if desired, also by post.
Other offers nearby
Berg - Lake Starnberg east shoreNew build: Corner house with sunbathing island in private garden and lake view
Plot 6.219 m² - Living approx. 128,11 m² - 1.288.000€
Berg - Lake Starnberg east shoreNew build: Modern corner house on Lake Starnberg
Plot 6.219 m² - Living approx. 143,99 m² - 1.408.000€





































































































































