New build: Corner house with sunbathing island in private garden and lake view
The corner house in the SEELEBEN project, part of the "Weitblick" building ensemble and located on the idyllic Lake Starnberg, offers an inviting living atmosphere on an area of 128 m². Thanks to the advantageous south-west orientation, the rooms are flooded with natural light. A special feature of this property is the picturesque view of Lake Starnberg.
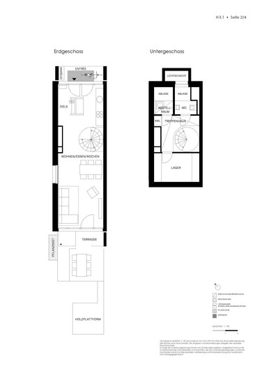
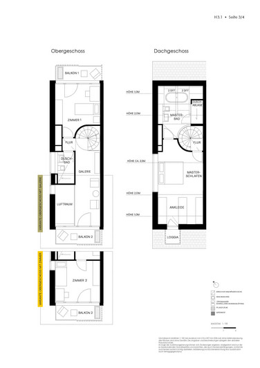
The first floor comprises a combined living, dining and cooking area. There are two rooms on the upper floor, each with a balcony. The top floor has a bedroom with an en-suite bathroom and a loggia. The 77 m² private garden, including an idyllic sunbathing island, as well as access to the communal orchards offer a wide range of opportunities for relaxation and outdoor activities. High-quality add-ons such as a sauna and a gym enhance the living experience and increase comfort. The house has two parking spaces in the underground garage.
The property is ready for immediate occupancy.
The SEELEBEN new-build project has a top energy rating of A. This means that low-interest real estate financing is available from as little as 2.50% effective interest. This "green loan" makes the purchase of a new-build home in this project particularly attractive. We will be happy to advise you.
- Property
- ETW 3388.13
- Property type
- Apartment
- Address
- Please contact us for further information
- Construction year
- 2025
- Lift
- no
- State
- First occupancy
- Land area
- 6.219 m²
- Living space
- approx. 128,11 m²
- Useful area
- approx. 167,78 m²
- Garden area
- approx. 77 m²
- Room
- 4
- Bedroom
- 3
- Bathroom
- 2
- Balconies
- 3
- Terraces
- 1
- Parking spaces
- 2
- Equipment
- upscale
- Guest toilet
- yes
- Garden use
- yes
- Flat
- 1.230.000 € (9.601 €/m²)
- Parking spaces (2)
- 58.000 €
- Total price
- 1.288.000 €
- Buyer's commission
- Commission free for the buyer
- Exceptional architecture with the highest standards of function and aesthetics
- Communal open spaces with fruit trees and meadows
- Large, elaborately designed playground
- Private garden with approx. 77 m² and south-west orientation with sunbathing island
- South-west-facing terrace with raised bed, balconies on both sides on the upper floor
- Interior design: three furnishing lines "Nature", "Lake" and "Elegance" for individual selection
- High-quality oak floorboards from the Casa Park collection by Bauwerk Parkett
- Designer bathrooms in three different equipment lines
- Porcelain stoneware tiles from Casalgrande Padana in bathrooms
- High-quality VOLA fittings and sanitary ceramics from Laufen
- Electric towel radiator from Kermi in the bathroom
- Entrance door made of larch wood with multi-point locking and electric door opener
- Audio intercom system
- Wooden windows with triple-pane insulating glazing
- Sun protection with electrically operated vertical awnings
- Round window elements with solar control glazing
- Comfort ventilation unit with heat recovery
- Underfloor heating
- Air heat pump supplemented by gas condensing boiler system
- Photovoltaic system
- Two underground parking spaces and bicycle parking spaces with connection for e-mobility
- Dining room, guest suite, sauna incl. relaxation room, fitness room, cinema, bicycle workshop and golf cart
Lake Starnberg, the surrounding landscape and the picturesque communities are undoubtedly among the most beautiful and privileged places in Germany. Upper Bavarian tradition and down-to-earthness are combined here with an upscale lifestyle and a cosmopolitan crowd. The municipality of Berg nestles idyllically on the sun-drenched eastern shore of the lake with its own landing stage. Thanks to its ideal connection to Munich and excellent infrastructure, Berg is widely regarded as the most desirable residential area on Lake Starnberg.
Berg is home to numerous restaurants and cafés, banks, a post office and all stores for daily needs. There is also a kindergarten, an elementary school, a Montessori school and a grammar school (Kempfenhausen). In addition, there is a wide range of excellent schools (including the renowned Munich International School MIS), first-class doctors, excellent restaurants and first-class shopping facilities in neighboring Starnberg.
Both Starnberg and Leonie (2 km south of Berg) have very well-equipped marinas (Rambeck, Simmerding, Gastl) where you can rent moorings for sailing, electric and motor boats in summer. The numerous restaurants right on the water are easily and conveniently accessible by boat. There is a popular water ski school in Possenhofen opposite. Numerous first-class golf courses, tennis clubs and sailing clubs around Lake Starnberg also provide an unsurpassed range of leisure activities. The nearby A95 to Garmisch provides perfect access to the picturesque hiking and skiing areas of the Bavarian, Austrian and Swiss Alps.
- Energy certificate type
- Demand pass
- Valid until
- 30.04.2034
- Main energy source
- Luftwärmepumpe
- Final energy demand
- 51 kWh/(m²*a)
- Energy efficiency class
- A
|
Unit |
Area |
Rooms |
Parking spaces |
Floor plan |
Purchase price |
|---|---|---|---|---|---|
| ETW 3388.1 | approx. 145,78 m² | 5 | 2 | view | 1.490.000 € |
| ETW 3388.10 | approx. 143,74 m² | 5 | 2 | view | 1.290.000 € |
| ETW 3388.12 | approx. 143,99 m² | 5 | 2 | view | 1.350.000 € |
| ETW 3388.13 | approx. 128,11 m² | 4 | 2 | view | 1.230.000 € |
| ETW 3388.17 | approx. 128,39 m² | 4 | 2 | view | 1.199.000 € |
| ETW 3388.18 | approx. 163,50 m² | 6 | 2 | view | 1.525.000 € |
| ETW 3388.19 | approx. 145,66 m² | 5 | 2 | view | 1.380.000 € |
| ETW 3388.2 | approx. 145,86 m² | 4 | 2 | view | 1.430.000 € |
| ETW 3388.20 | approx. 145,66 m² | 5 | 2 | view | 1.340.000 € |
| ETW 3388.7 | approx. 143,99 m² | 5 | 2 | view | 1.350.000 € |
| HS 1570.1.1 | approx. 145,78 m² | 5 | 2 | view | 1.270.000 € |
| HS 1570.1.2 | approx. 140,42 m² | 4 | 2 | view | 1.225.000 € |
| HS 1570.1.3 | approx. 145,66 m² | 5 | 2 | view | 1.199.000 € |
| HS 1570.1.4 | approx. 145,66 m² | 5 | 2 | view | 1.230.000 € |
| HS 1570.1.5 | approx. 145,66 m² | 5 | 2 | view | 1.199.000 € |
| HS 1570.1.6 | approx. 145,78 m² | 5 | 2 | view | 1.295.000 € |
| HS 1570.2.1 | approx. 143,99 m² | 5 | 2 | view | 1.350.000 € |
| HS 1570.2.2 | approx. 143,74 m² | 5 | 2 | view | 1.295.000 € |
| HS 1570.2.3 | approx. 143,74 m² | 5 | 2 | view | 1.295.000 € |
| HS 1570.2.4 | approx. 143,74 m² | 5 | 2 | view | 1.290.000 € |
| HS 1570.2.5 | approx. 143,74 m² | 5 | 2 | view | 1.290.000 € |
| HS 1570.2.6 | approx. 143,99 m² | 5 | 2 | - | sold |
| HS 1570.3.1 | approx. 128,11 m² | 4 | 2 | view | 1.230.000 € |
| HS 1570.3.2 | approx. 128,39 m² | 4 | 2 | - | sold |
| HS 1570.3.3 | approx. 128,39 m² | 4 | 2 | view | 1.199.000 € |
| HS 1570.3.4 | approx. 128,39 m² | 4 | 2 | view | 1.199.000 € |
| HS 1570.3.5 | approx. 128,39 m² | 4 | 2 | view | 1.199.000 € |
| HS 1570.3.6 | approx. 163,50 m² | 6 | 2 | view | 1.525.000 € |
| HS 1570.4.2 | approx. 145,66 m² | 5 | 2 | view | 1.380.000 € |
| HS 1570.4.3 | approx. 145,66 m² | 5 | 2 | view | 1.340.000 € |
| HS 1570.4.4 | approx. 145,66 m² | 5 | 2 | view | 1.365.000 € |
| HS 1570.4.5 | approx. 145,66 m² | 5 | 2 | view | 1.340.000 € |
We will gladly send you our detailed exposé with a detailed description of the property including planning documents by e-mail and, if desired, also by post.
Other offers nearby
Berg - Lake Starnberg east shoreNew build: mid-terrace house with private sunbathing island in an idyllic location and lake view
Plot 6.219 m² - Living approx. 128,39 m² - 1.257.000€
Berg - Lake Starnberg east shoreNew build: mid-terrace house with garden and exclusive features
Plot 6.219 m² - Living approx. 145,66 m² - 1.438.000€








































































































































