Erstbezug in Stadtvilla: Familiengerechte 4-Zimmer-Wohnung mit Gartenparadies
Diese bildschöne gestaltete Gartenwohnung befindet sich in äußerst begehrter Nymphenburger Lage, nur wenige Schritte vom Nymphenburger Schloss entfernt, und begeistert durch Großzügigkeit, einen familiengerechten Grundriss und die exklusive, geschmackvolle Ausstattung. Die Räumlichkeiten sind Teil einer hochklassigen Stadtvilla, die soeben in Fertigstellung begriffen ist. Mit stilvollen Wandvertäfelungen und Bodenbelägen in edler Marmor-Optik erinnert das Entree des Gebäudes an den exklusiven Look internationaler Top-Hotels.
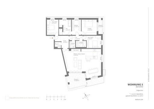
Das Raumkonzept erstreckt sich über ca. 176 m² Wohnfläche, die auf einer Ebene liegen; Wohnen und Schlafen sind auf durchdachte Weise gegliedert. Neben einem weitläufigen Wohn-, Ess- und Kochbereich gibt es eine in sich geschlossene Mastersuite mit Ankleide und Bad, zwei (Kinder-)Zimmer, ein Duschbad, ein Gäste-WC und einen Hauswirtschafts-/Abstellraum. Ein ca. 299 m² großer exklusiv nutzbarer Garten mit sonniger Terrasse ergänzt die Räumlichkeiten und lädt zum Spielen, Feiern und Entspannen ein.
Die ebenso ästhetische wie zeitlos-elegante Ausstattung umfasst edles Eichen-Dielenparkett sowie Badobjekte unter anderem von Antonio Lupi und Dornbracht. Mit technischen Finessen wie einem KNX-System, einer dezentralen Wohnraumbelüftung mit effizienter Wärmerückgewinnung sowie Deckenkühlung ist auch für hohen Komfort gesorgt. Komplettiert wird dieses repräsentative Zuhause im feinsten Nymphenburg durch einen Tiefgarageneinzelstellplatz mit Vorrüstung für E-Mobilität und ein Kellerabteil.
- Objekt
- ETW 3326.03
- Objektart
- Erdgeschosswohnung
- Adresse
- Bitte kontaktieren Sie uns für weitere Informationen
- Baujahr
- 2024
- Etage
- Erdgeschoss
- Aufzug
- ja
- Zustand
- Erstbezug
- Wohnfläche
- ca. 176,1 m²
- Nutzfläche
- ca. 192 m²
- Gartenfläche
- ca. 299,7 m²
- Zimmer
- 4
- Schlafzimmer
- 3
- Badezimmer
- 2
- Terrassen
- 2
- Stellplätze
- 1
- Ausstattung
- luxuriös
- Gäste-WC
- ja
- Netzwerk
- ja
- Bus-System
- ja
- Gartennutzung
- ja
- Wohneinheiten
- 8
- Wohnung
- 3.300.000 € (18.739 €/m²)
- Stellplatz
- 45.000 €
- Gesamtpreis
- 3.345.000 €
- Käuferprovision
- Provisionsfrei für den Käufer
- Stufenfreier Zugang sowohl vom Straßenniveau als auch von der Tiefgarage
- KNX-System zur Steuerung der Beleuchtung und der Aluminium-Raffstores im Wohn-/Ess- und Kochbereich
- Hochwertiges Eichen-Dielenparkett aus deutscher Herkunft in unterschiedlichen Breiten für ein exklusives Erscheinungsbild, gebürstet und geölt; hohe weiße Sockelleisten
- Fußbodenheizung in der gesamten Wohnung
- Deckenkühlung über Betonkernaktivierung (Ausgenommen Bäder und WC)
- Dezentrale Wohnraumbelüftung mit effizienter Wärmerückgewinnung
- Kaminanschluss im Wohn-/Essbereich
- Masterbad mit Fenster, gestaltet mit edlem Feinstein in Marmor-Optik, ausgestattet mit Wanne in matter Optik, bodengleicher Rainshower-Dusche, Flumood-Waschtisch (Antonio Lupi), Dornbracht-Armaturen „Vaia“, Handtuchwärmer und WC
- Duschbad, analog zum Masterbad gestaltet, ausgestattet mit bodengleicher Rainshower-Dusche, Flumood-Waschtisch (Antonio Lupi), Dornbracht-Armaturen „Vaia“, Handtuchwärmer und WC
- Gäste-WC, analog zu den Bädern gestaltet
- Vorbereitete Küchenanschlüsse einschl. Stromanschluss für eine Kochinsel
- Waschmaschinenanschluss in der Hauswirtschaftskammer
- Weiße Innentüren mit Design-Beschlägen im italienischen Stil (Formani)
- Holz-Aluminium-Fenster, 3-fach isolierverglast und abschließbar
- Falt-Schiebefenster im Wohn-/Essbereich für luftiges Outdoor-Feeling
- Elektrische Aluminium-Raffstores in schwarz
- LAN-Verkabelung
- Video-Gegensprechanlage mit Farb-Display
- Garten zur exklusiven Nutzung: große Terrasse mit Natursteinbelag, Stromanschluss, Anschluss für Beleuchtung und Wasseranschluss; eigener Außenzugang
- Kellerabteil, ca. 4,2 m², mit eigener Beleuchtung und Steckdose
- Ein geräumiger Tiefgarageneinzelstellplatz mit Vorrüstung für E-Mobilität
GEMEINSCHAFTLICHE EINRICHTUNGEN
- Repräsentatives Entree im Stil internationaler Top-Hotels
- Beheizbare Tiefgaragen-Abfahrtsrampe
- Hochwertige Naturstein-Zuwegungen im Außenbereich
- Großes ebenerdiges Fahrradhaus
- Kinderwagen-Abstellraum im Untergeschoss
- Beheizung per Wasser-Wasser-Wärmepumpe mit Gasbrennwert-Unterstützung zur Abdeckung der Spitzenlast
- Kinderspiel-/Gemeinschaftsbereich
Nymphenburg gilt als stadtnahe, grüne Spitzenwohnlage Münchens. Alleestraßen mit prächtigem Baumbestand, denkmalgeschützter Bausubstanz und ein einmaliges historisches Flair prägen dieses äußerst gesuchte, noble Umfeld. Die angebotene Gartenwohnung befindet sich nur wenige Schritte vom prachtvollen Nymphenburger Schloss mit seinen Parkanlagen, Wasserspielen und Spazierwegen entfernt. Zu jeder Jahreszeit vermittelt diese exklusive Lage einen besonderen Charme.
Die Infrastruktur ist perfekt und zudem sehr familienfreundlich. Im nahen Umkreis befinden sich Einkaufsmöglichkeiten für den täglichen Bedarf. In Nymphenburg stehen zahlreiche Kitas (darunter auch bilinguale Angebote) zur Auswahl. Die Grundschule an der Maria-Ward-Straße ist nur einige Meter entfernt und auf ruhigen Nebenwegen zu erreichen.
Auch der Freizeit- und Erholungswert dieser Lage ist ausgezeichnet. Mit dem Schlosspark und dem Botanischen Garten liegen zwei der schönsten Ausflugsziele Münchens quasi vor der Haustür. Ganz gleich, ob Joggen, Walken, Spazierengehen oder einfach nur Entspannen - Schlosspark und Botanischer Garten laden zu jeder Jahreszeit ein. Fitness- und Yoga-Studios bieten in der Nähe ein breitgefächertes Programm. Squash Courts stehen im TSV Neuhausen Nymphenburg zur Verfügung, Tennisplätze im ESV an der Laimer Unterführung. Der Wintrichring und die schnell erreichbare A8 sorgen für eine perfekte Verkehrsanbindung in alle Richtungen. Der ÖPNV führt rasch und bequem in die Innenstadt.
- Energieausweistyp
- Bedarfsausweis
- Gültig bis
- 15.08.2031
- Wesentlicher Energieträger
- Strom
- Endenergiebedarf
- 21,9 kWh/(m²*a)
- Energieeffizienzklasse
- A+
| Einheit | Etage | Fläche | Zimmer | Stellplätze | Grundriss | Kaufpreis | 
|---|---|---|---|---|---|---|
| ETW 3326.02 | Erdgeschoss und Untergeschoss | ca. 94,90 m² | 2 | 1 | ansehen | 1.700.000 € | 
| ETW 3326.03 | Erdgeschoss | ca. 176,10 m² | 4 | 1 | ansehen | 3.300.000 € | 
| ETW 3326.04 | Obergeschoss | ca. 134,70 m² | 3 | 1 | - | verkauft | 
| ETW 3326.05 | Obergeschoss | ca. 70,00 m² | 2 | 1 | - | verkauft | 
| ETW 3326.06 | Obergeschoss | ca. 167,10 m² | 4 | 1 | - | verkauft | 
| ETW 3326.07 | Dachgeschoss | ca. 167,30 m² | 3 | 1 | - | verkauft | 
| ETW 3326.08 | Dachgeschoss | ca. 126,10 m² | 3 | 1 | ansehen | 2.500.000 € | 
Gerne übersenden wir Ihnen unser ausführliches Exposé mit einer detaillierten Beschreibung des Objektes samt Planunterlagen per E-Mail und auf Wunsch zusätzlich per Post.
Weitere Angebote in der Nähe
 München – Nymphenburg / Am Schloss München – Nymphenburg / Am Schloss- Erstbezug: Hochklassige Penthouse-Wohnung in fertiggestelltem StadtpalaisWfl. ca. 126,1 m² - 3 Zimmer - 2.545.000€
 München – Nymphenburg / Villenkolonie Gern München – Nymphenburg / Villenkolonie Gern- Flexible Nutzungsoptionen: 2 benachbarte Wohnungen über 218 m² in Villa von 1890 am SchlosskanalWfl. ca. 218 m² - 6 Zimmer - 3.290.000€
























