Neubau: Modernes Eckhaus am Starnberger See
Erleben Sie ein einzigartiges Wohnkonzept am malerischen Starnberger See, wo Ihr eigenes Zuhause auf Sie wartet.
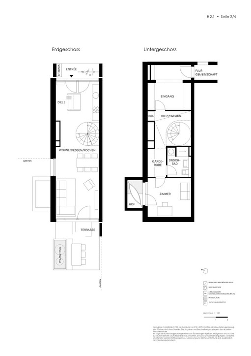
Das moderne Eckhaus im Neubauprojekt SEELEBEN ist eingebettet in eine offene Gartenlandschaft und bietet eine Wohnfläche von ca. 144 m² sowie einen privaten Garten mit einer Fläche von 86 m². Die optimale Ausrichtung des Hauses nach Südwesten sorgt den ganzen Tag für angenehmes Licht und eine besondere Atmosphäre. Im Erdgeschoss erstreckt sich ein offener Wohn-, Ess- und Kochbereich mit Zugang zur Terrasse, ergänzt durch ein weiteres Zimmer und ein Bad im Untergeschoss. Das Obergeschoss verfügt über zwei weitere Zimmer, welche als Kinderzimmer oder Büros genutzt werden können. Im Dachgeschoss befindet sich das Master-Schlafzimmer mit Bad en Suite und einer einladenden Loggia. Zwei weitere Balkone ergänzen das Raumangebot und bieten zusätzliche Freiflächen zum Entspannen.
Ein direkter Zugang zur Tiefgarage mit zwei Stellplätzen erhöht den Komfort, während smarte Features wie eine Gästesuite, eine Partyküche, ein Fitnessraum, ein Spa-Bereich, ein Heimkino und eine Fahrradwerkstatt die Gemeinschaftseinrichtungen vervollständigen. Die exklusive Lage rundet das Angebot ab und verspricht einzigartige Wohnqualität.
Hier finden Sie Raum für Austausch und Zusammenleben inmitten einer harmonischen Nachbarschaft, die Wert auf stilvolles und modernes Wohnen legt. Willkommen im SEELEBEN, wo Individualität und gemeinschaftliches Miteinander im Einklang stehen.
Die Einheiten sind ab sofort bezugsfertig.
- Objekt
- HS 1570.2.1
- Objektart
- Reiheneckhaus
- Adresse
- Bitte kontaktieren Sie uns für weitere Informationen
- Baujahr
- 2025
- Zustand
- Erstbezug
- Grundstück
- 6.219 m²
- Wohnfläche
- ca. 143,99 m²
- Nutzfläche
- ca. 182,48 m²
- Gartenfläche
- ca. 86 m²
- Zimmer
- 5
- Schlafzimmer
- 4
- Badezimmer
- 3
- Balkone
- 3
- Terrassen
- 1
- Stellplätze
- 2
- Anzahl Etagen
- 4
- Ausstattung
- gehoben
- Gartennutzung
- ja
- Unterkellert
- ja
- Kaufpreis
- 1.350.000 €
- Stellplätze (2)
- 58.000 €
- Gesamtpreis
- 1.408.000 €
- Käuferprovision
- Provisionsfrei für den Käufer
- Außergewöhnliche Architektur mit höchsten Ansprüchen an Funktion und Ästhetik
- Gemeinschaftliche Freiflächen mit Obstbäumen und Wiesen
- Großer, aufwändig gestalteter Spielplatz
- Privatgarten mit ca. 86 m² und Südwest-Ausrichtung
- Südwest-Terrasse mit Hochbeet, beidseitige Balkone im Obergeschoss
- Interior Design: drei Ausstattungslinien „Natur“, „See“ und „Eleganz“ zur individuellen Auswahl
- Hochwertige Eichendielenböden aus der Kollektion Casa Park von Bauwerk Parkett
- Design-Bäder in drei verschiedenen Ausstattungslinien
- Fliesen aus Feinsteinzeug von Casalgrande Padana in Bädern, WCs und Abstellräumen
- Hochwertige VOLA-Armaturen und Sanitärkeramik von Laufen
- Elektro-Handtuchheizkörper von Kermi im Bad
- Hauseingangstür aus Lärchenholz mit Mehrfachverriegelung und elektrischem Türöffner
- Audiogegensprechanlage
- Holzfenster mit Dreischeiben-Isolierverglasung
- Sonnenschutz durch elektrisch betriebene Senkrechtmarkisen
- Runde Fensterelemente mit Sonnenschutzverglasung
- Komfort-Lüftungsgerät mit Wärmerückgewinnung
- Fußbodenheizung
- Luftwärmepumpe ergänzt durch Gasbrennwertanlage
- Photovoltaik-Anlage
- Zwei Tiefgaragenstellplätze und Fahrradstellplätze mit Anschluss für E-Mobilität
- Direkter Zugang der jeweils hauseigenen Keller zur Tiefgarage
- Add-ons-Flächen: Dining-Room, Gästesuite, Sauna inkl. Ruheraum, Fitnessraum, Kino, Fahrradwerkstatt und Golf-Cart
Der Starnberger See, die umgebende Landschaft und die malerischen Gemeinden zählen zweifelsohne zu den schönsten und privilegiertesten Orten Deutschlands. Oberbayerische Tradition und Bodenständigkeit verbinden sich hier mit gehobenem Lebensstil und kosmopolitischem Publikum. Die Gemeinde Berg schmiegt sich mit eigener Schiffsanlegestelle idyllisch an das sonnenverwöhnte Ostufer des Sees. Dank der idealen Anbindung an München und der ausgezeichneten Infrastruktur gilt Berg weithin als begehrteste Wohnlage am Starnberger See.
In Berg gibt es zahlreiche Restaurants und Cafés, Banken, eine Post sowie alle Geschäfte des täglichen Bedarfs. Auch ein Kindergarten, eine Grundschule, eine Montessori-Schule sowie ein Gymnasium (Kempfenhausen) sind vorhanden. Darüber hinaus gibt es im direkt angrenzenden Starnberg ein breit gefächertes Angebot an hervorragenden Schulen (darunter die renommierte Munich International School MIS), erstklassige Ärzte, exzellente Restaurants und erstklassige Einkaufsmöglichkeiten.
Sowohl in Starnberg als auch in Leoni (2 km südlich von Berg) gibt es sehr gut ausgestattete Yachthäfen (Rambeck, Simmerding, Gastl), in denen man im Sommer Liegeplätze für Segel-, Elektro- und Motorboote pachten kann. So werden die zahlreichen Restaurants direkt am Wasser leicht und bequem per Boot erreichbar. Im gegenüberliegenden Possenhofen gibt es eine beliebte Wasserskischule. Auch zahlreiche erstklassige Golfplätze, Tennis-Vereine und Segelclubs rund um den Starnberger See sorgen für ein unübertroffenes Freizeitangebot. Die nahegelegene A95 nach Garmisch sorgt für eine perfekte Anbindung an die malerischen Wander- und Skigebiete der Bayerischen, Österreichischen und Schweizer Alpen.
- Energieausweistyp
- Bedarfsausweis
- Gültig bis
- 30.04.2034
- Wesentlicher Energieträger
- Luftwärmepumpe
- Endenergiebedarf
- 45 kWh/(m²*a)
- Energieeffizienzklasse
- A
|
Einheit |
Fläche |
Zimmer |
Stellplätze |
Grundriss |
Kaufpreis |
|---|---|---|---|---|---|
| ETW 3388.10 | ca. 143,74 m² | 5 | 2 | ansehen | 1.290.000 € |
| ETW 3388.17 | ca. 128,39 m² | 4 | 2 | ansehen | 1.199.000 € |
| ETW 3388.19 | ca. 145,66 m² | 5 | 2 | ansehen | 1.380.000 € |
| ETW 3388.20 | ca. 145,66 m² | 5 | 2 | ansehen | 1.340.000 € |
| HS 1570.2.1 | ca. 143,99 m² | 5 | 2 | ansehen | 1.350.000 € |
| HS 1570.2.6 | ca. 143,99 m² | 5 | 2 | - | verkauft |
| HS 1570.3.1 | ca. 128,11 m² | 4 | 2 | ansehen | 1.230.000 € |
| HS 1570.3.2 | ca. 128,39 m² | 4 | 2 | - | verkauft |
| HS 1570.3.6 | ca. 163,50 m² | 6 | 2 | ansehen | 1.525.000 € |
Gerne übersenden wir Ihnen unser ausführliches Exposé mit einer detaillierten Beschreibung des Objektes samt Planunterlagen per E-Mail und auf Wunsch zusätzlich per Post.
Weitere Angebote in der Nähe
Berg – Starnberger See OstuferNeubau: Eckhaus mit Liegeinsel im privaten Garten und Seeblick
Grd. 6.219 m² - Wfl. ca. 128,11 m² - 1.288.000€
Berg – Starnberger See OstuferNeubau: Großzügiges Eckhaus in idyllischer Lage am Starnberger See
Grd. 6.219 m² - Wfl. ca. 163,5 m² - 1.583.000€














































