Perfekt angebundenes Grundstück von 544 m² mit genehmigter Mehrfamilienhaus-Planung Nähe Schlosspark
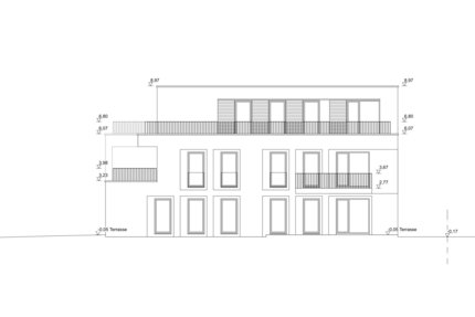
Bei der exklusiv von uns zum Kauf angebotenes Objekt handelt es sich um ein gut geschnittenes Baugrundstück in verkehrsgünstiger Lage, nur wenige Schritte von der Schlossmauer und dem Nymphenburger Schlosspark entfernt. Das Grundstück ist freigeräumt und umfasst ein attraktives Baurecht mit einer genehmigten Bebauung eines Mehrfamilienhauses mit vier Wohneinheiten samt Tiefgarage.
- Objekt
- GR 173
- Objektart
- Grundstück
- Grundstück
- 544 m²
- Grundflächenzahl
- 0,4
- Geschossflächenzahl
- 0,72
Dieses Objekt ist bereits verkauft.
Das exklusiv von uns zum Kauf angebotene Grundstück befindet sich in verkehrsgünstiger Lage, nur wenige Schritte vom Nymphenburger Schlosspark mit seinem majestätischen Baumbestand und den weitläufigen Gartenanlagen entfernt.
In der Nähe befindet sich ein Bio-Supermarkt und ein Discounter für Einkaufsmöglichkeiten des täglichen Bedarfs. Das Umfeld ist ausgesprochen familienfreundlich. In der nahen Umgebung stehen Kinderbetreuungsmöglichkeiten zur Auswahl. Sprengel-Grundschule ist die äußerst begehrte Grundschule an der Maria-Ward-Straße, die sich im malerischen Schlossrondell befindet. Das private Obermenzinger Gymnasium, die renommierten Nymphenburger Schulen sowie die Maria-Ward-Schulen (beide mit Real- und Gymnasialzweig) liegen in kurzer Entfernung.
Der PSV München, der TSV Moosach-Hartmannshofen und der TSV Neuhausen-Nymphenburg bieten vielfältige Sportmöglichkeiten. Auch den ESV mit Hockey und Tennis erreicht man schnell per Rad entlang der Schlossmauer. Der Schlosspark, der Botanische Garten und der Hartmannshofer Park sind einzigartige grüne Oasen in unmittelbarer Nähe.
Hervorzuheben ist die ideale Anbindung an den ÖPNV. Nur wenige Schritte entfernt verkehren die Buslinien 143, 158 und 162 (u.a. zum Moosacher Bahnhof mit U-Bahnanschluss). Die Tramlinie 17 (über den Romanplatz zum Hauptbahnhof und in die City) verkehrt nur ca. 300 Meter entfernt. Den S-Bahn-Halt "Obermenzing" erreicht man in nur ca. 10 Gehminuten. In kurzer Entfernung befinden sich der Wintrich- und der Mittlere RIng; auf die A 8 Richtung Norden und Flughafen (ca. 30 Minuten mit dem Pkw) gelangt man in wenigen Autominuten.
Weitere Angebote in der Nähe
 München – Solln München – Solln- Familienfreundliche Lage: Baugrundstück in perfekter SüdwestausrichtungGrd. 494 m² - Kaufpreis auf Anfrage
 Krailling – Würmtal Krailling – Würmtal- Baugrundstück mit genehmigtem Entwurf für ein modernes EinfamilienhausGrd. 648 m² - 1.390.000€







