Großzügige exklusive Designer-Wohnung direkt am Nymphenburger Schlosspark
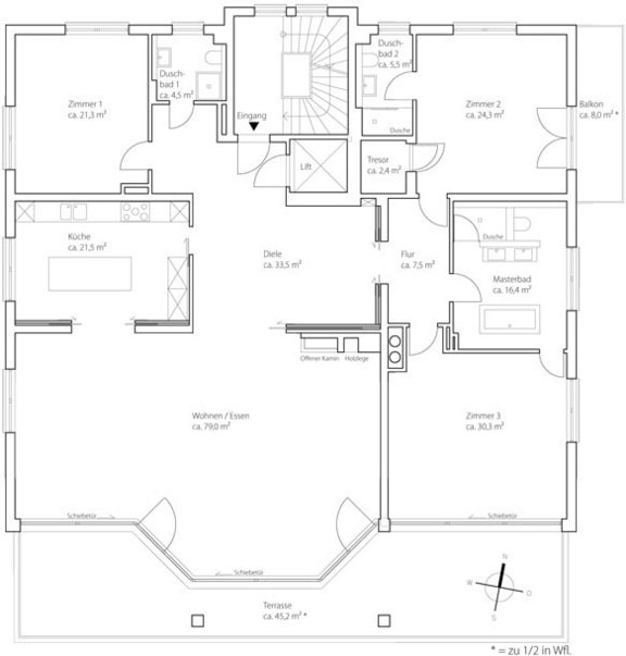
Sehr großzügige Vier-Zimmer-Wohnung über das gesamte 1. Obergeschoss einer sehr exklusiven Neubau-Villa mit nur drei Wohneinheiten. Besonders attraktiver Wohn-/Essbereich mit Erker, offenem Kamin und großer Südterrasse, abgeschlossener Schlafbereich mit zwei Bädern en suite und separates Gäste-Duschbad, exzellente Designerausstattung, hochwertige bulthaup Einbauküche. Lift bis in die Eingangsdiele, großes Kellerabteil und zwei ebenerdige TG-Stellplätze.
- Objekt
- VM 3562
- Objektart
- Etagenwohnung
- Baujahr
- 2011
- Etage
- 1. OG
- Aufzug
- ja
- Zustand
- neuwertig
- Wohnfläche
- ca. 273 m²
- Zimmer
- 4
- Schlafzimmer
- 3
- Badezimmer
- 3
- Stellplätze
- 2
- Einbauküche
- ja
- Gäste-WC
- ja
Dieses Objekt ist bereits vermietet.
- Fußbodenheizung; Eichenparkett (geölt)
- Exklusive Kücheneinrichtung von bulthaup
- Designerbäder mit Dornbracht Armaturen
- Beleuchtungskonzept mit abgehängten Decken, LED Bändern und Downlights
- Große, teilüberdachte Südterrasse mit elektrischen Markisen und Beleuchtung
- Lift direkt in die Wohnung
- Elektrische Jalousien
- Zwei große Stellplätze in der Tiefgarage
Die Spitzenwohnlage Nymphenburg bietet beste Lebensqualität in niveauvoller, grüner Umgebung, mit direkter Zentrumsnähe und einer perfekten Infrastruktur. Das Neubauobjekt selbst liegt in der Zuccalistraße direkt am Schlosspark, nur wenige Gehminuten vom Nymphenburger Schloss entfernt.
Weitere Angebote in der Nähe
 München – Nymphenburg München – Nymphenburg- Edel ausgestattete 4,5-Zimmer-Wohnung mit ca. 260 m² Privatgarten in nobler BestlageWfl. ca. 146 m² - 4,5 Zimmer - 4.500€ zzgl. NK
 München – Obermenzing / am Nymphenburg-Pasing-Kanal München – Obermenzing / am Nymphenburg-Pasing-Kanal- Luxuriöse 4-Zimmer-Wohnung mit Spa- & Hobbybereich in idyllischer ToplageWfl. ca. 179 m² - 4 Zimmer - 5.800€ zzgl. NK
















